
公称压力(MPa) | 1.0 | 1.6 | 2.5 | 4.0 |
强度试验压力(MPa) | 1.5 | 2.4 | 3.8 | 6.0 |
工作压力(MPa) | 1.0 | 1.6 | 2.5 | 4.0 |
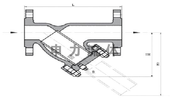
■ 规格尺寸(一) ■ | |||||
DN | in | L | H | H1 | 有效过滤面积 m2 |
15 | 1/2 | 125 | 70 | 150 | 0.00185 |
20 | 3/4 | 145 | 70 | 150 | 0.00281 |
25 | 1 | 160 | 80 | 160 | 0.00343 |
32 | 11/4 | 180 | 90 | 180 | 0.00486 |
40 | 11/2 | 200 | 100 | 240 | 0.00767 |
50 | 2 | 220 | 130 | 250 | 0.01161 |
65 | 21/2 | 260 | 165 | 350 | 0.02111 |
80 | 3 | 280 | 195 | 390 | 0.03029 |
100 | 4 | 320 | 230 | 450 | 0.04063 |
125 | 5 | 320 | 230 | 490 | 0.05523 |
■ 规格尺寸(二)■ | |||||
DN | in | L | H | H1 | 有效过滤面积 m2 |
150 | 6 | 380 | 335 | 580 | 0.07709 |
200 | 8 | 495 | 420 | 690 | 0.11967 |
250 | 10 | 595 | 500 | 800 | 0.19155 |
300 | 12 | 640 | 580 | 950 | 0.26738 |
350 | 14 | 750 | 650 | 1100 | 0.30926 |
400 | 16 | 800 | 700 | 1360 | 0.40946 |
450 | 18 | 850 | 800 | 1500 | 0.55638 |
500 | 20 | 900 | 875 | 1650 | 0.65385 |
550 | 22 | 1000 | 940 | 1780 | 0.76956 |
600 | 24 | 1250 | 1050 | 1900 | 0.87528 |
